Updated: February 3, 2026
Over repair/under repair of the Clutch Release System (and/or clutch) due to a lack of troubleshooting wear measurement criteria. For customers experiencing an illuminated transmission service lamp and Fault Code 511 (SPN 5614) FMI 7, 10, refer to TAIB-0885.
Document Clutch Release System and/or Clutch Diaphragm Spring wear troubleshooting measurement criteria and Clutch Release System damage to look for per this TAIB.
This document only applies if Fault Code 706 SPN 2983 FMI 17 or 18 is set Active or Inactive or you were sent here from TAIB-0885, perform the clutch release system inspection detailed in the Service Strategy section.
Reference Endurant HD Automated Transmission Service Manual TRSM0950 and XD Automated Transmission Service Manual for all service procedures.
1. Inspect Input Shaft Wear Sleeve for excessive wear. Excessive wear is considered anything more than 1.0 mm wear from the original OD diameter. Original OD diameter of the input shaft wear sleeve is 29.959 mm - 29.972 mm.
Note: Pilot bearing replacement is non-warrantable. Input shaft pilot bearing wear sleeve wear and/or damage is non-warrantable.
1. Inspect Input Shaft Pilot Bearing journal for excessive wear. Excessive wear is considered anything more than 1.0 mm wear from the original OD diameter. Original OD diameter of the input shaft to pilot bearing journal is 29.977 +/- 0.008 mm.
Note: Pilot bearing replacement is non-warrantable. Input shaft journal wear and/or damage is non-warrantable.
2. Inspect Release Bearing
New | Partially Rotated (Reuse) | Rotated (Replace) |
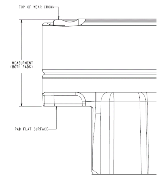
3. Inspect release bearing assembly for wear and/or “divots” on wear pads from rollers. Document the wear measurements in the warranty claim notes.
4. Measure Release Bearing assembly for wear.
Measuring an ISO Bearing | |
![]() | ![]() |
5. Place release bearing assembly (bearing side down). With downward pressure rotate the release bearing assembly by hand. New or low hour bearings will have a higher rolling resistance (New seals and new grease).
Rotate with pressure | Rotate checking for seal drag | |
Note: A release bearing that does not meet the inspection criteria in the steps 2, 3, 4, and 5 is not considered to be failed but cannot be reused.
6. Inspect the release yoke, release yoke pivot pin, release yoke plastic sockets for damage.
Fore and Aft | Up and Down |
7. Inspect the Clutch Diaphragm Spring for wear. Reference Eaton CLIB0040.
8. If no observed Clutch Release System and/or Clutch Diaphragm Spring wear is within the acceptable limits found in this Service Bulletin or Eaton Clutch Service Bulletin, continue with troubleshooting as appropriate.
Note: It is highly recommended to implement the new High Preload (HPL) LCA, new reduced weight release yoke and replace the release yoke pivot pin at the time of clutch replacement. The introduction of the HPL LCA and the reduced weight release yoke will improve the clutch release system dynamics between the release yoke, release bearing, and diaphragm spring of the clutch cover (Customer Pay if not found to be warrantable).
Note: All production transmissions were built with the new High Preload (HPL) LCA and the reduced weight release yoke. It is not recommended to replace the release yoke pivot pin unless damaged.
Note: HD and XD transmissions do not share the same release yoke pivot pin and are not to be interchanged. XD transmission release yoke pivot pin is shorter, HD transmission pivot pin is longer. Installing an HD pivot pin on an XD transmission may result in a FC 250 or a clutch that may not calibrate.

Endurant HD Parts Book - TRPB0950 | Endurant XD Parts Book - TRPB0960 |
![]() | ![]() |
Standard warranty per Model and Vocation as published in the Eaton Cummins Automated Transmission Technologies Warranty Manual ECWY3000.
Warranty will not cover proactive repairs without approval from Eaton Cummins Service Engineering, Eaton Tech Service and Warranty.
| Date | Description |
|---|---|
| 02/03/2026 | Added minimum diameter for HD Pilot Bearing Wear Sleeve and XD Input Shaft to Pilot Bearing Journal. |
| 07/21/2025 | Updated Service Strategy. Removed Part Number References. Added QR Codes for HD and XD Parts Manuals. Added Pivot Pin Identification. |
| 03/03/02025 | Aligned SRT’s with ECWY3000. |
| 12/06/2024 | Removed Fault Code 512 (SPN 5615) FMI 16. Revised Field Strategy. |
| 07/01/2024 | Added XD, XD Pro, and PACCAR TX18, TX18 Pro. Adjusted SRT Times. Updated Warranty Parts list. |
| 04/08/2024 | Updated Field and Service Strategy. Updated warranty parts list. |
| 02/19/2024 | Updated clutch service kits, release yoke, and release bearing part numbers. Added step 8 advising to replace the LCA, Release Yoke, and Release Yoke Pivot Pin at the time of clutch replacement (Customer Pay). |
The material contained in this bulletin is product improvement information. Eaton Corporation is not committed to, or liable for, canvassing existing products.
FSUD: 4226