The Transmission Control Module (TCM) is configured to accept Primary Shift Device messages from the transmission driver interface device over the Primary Data Link (J1939A). This information is used to determine transmission operation. A Secondary Shift Device request signal from the transmission driver interface device is also provided on a separate hardwired circuit. The Secondary Shift Device request signal allows a driver to engage the transmission into a Shift Mode in the event the Primary Shift Device message is not available. The Primary Data Link (J1939A), transmission driver interface device, and Secondary Shift Device hardwired circuit and wiring are installed by the OEM and connect to the TCM through the 20-Way TCM Vehicle Harness Connector.
Note: Freightliner chassis (OEM Supplied Driver Interface Device) does not have a secondary shift device and must be configured (ACN 19) to J1939 CAN Device (w/o secondary).
The TCM monitors Primary Shift Device messages. If messages are not received or are invalid, the fault is set Active.
FMI 2 – Data Erratic: Primary Shift Device message out of range for 5 seconds.
FMI 9 – Abnormal Update Rate: Primary Shift Device message not received for 5 seconds.
FMI 11 – Root Cause Unknown: Primary and Secondary Shift Device values do not match for 1 second.
FMI 12 – Bad Intelligent Device: Primary Shift Device request in opposite direction of vehicle travel at a speed greater than allowable shuttle shifting speed.
FMI 13 – Out Of Calibration: Primary Shift Device message not available for 5 seconds.
FMI 14 – Special Instructions: Delayed gear engagement after shift mode change.
FMI 19 – Received Network Data In Error: Primary Shift Device messages invalid for 5 seconds.
FMI 2, 9, 11, 19:
FMI 12:
FMI 13:
FMI 14:
FMI 2: Primary Shift Device messages in range for 10 seconds.
FMI 9, 19: Primary Shift Device messages received and valid for 10 seconds.
FMI 11: Primary and Secondary Shift Device values match for 1 second.
FMI 12, 14: Key cycle and fault condition no longer exist.
FMI 13: Primary Shift Device messages received and valid for 1 second.
FMI 2, 9, 19:
FMI 11:
FMI 12, 14:
FMI 13:
![]() |
1. 20-Way TCM Vehicle Harness Connector 2. Transmission Control Module (TCM) 3. OEM Driver Interface Device Connector 4. 9-Way Type 2 Diagnostic Connector (In Cab) |
![]() |
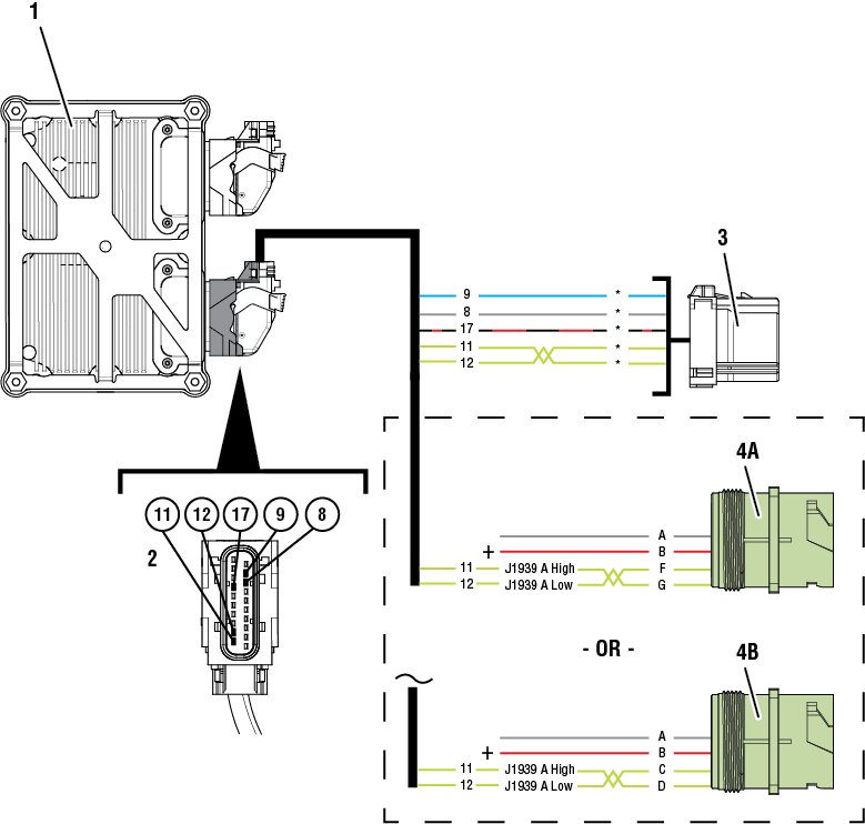
1. Transmission Control Module (TCM) 2. 20-Way TCM Vehicle Harness Connector 3. OEM Driver Interface Device Connector 4A. 9-Way Type 2 Diagnostic Connector (OEM-Specific Primary Data Link FG) 4B. 9-Way Type 2 Diagnostic Connector (OEM-Specific Primary Data Link CD) *Refer to OEM wiring diagrams and connector views to verify circuit locations and descriptions |
![]() |
Set vehicle parking brake and chock wheels.
Record the transmission fault codes, FMIs, occurrences, and timestamps from the Service Activity Report created during the Diagnostic Procedure.
If Fault Code 135 is Inactive and there are other Active vehicle or transmission fault codes, troubleshoot all Active fault codes. Go to Step V
If Fault Code 135 FMI 2, 9, or 19 is Active or Inactive, Go to Step B
If Fault Code 135 FMI 11 is Active or Inactive, Go to Step E
If Fault Code 135 FMI 12 or 14 is Active or Inactive, Contact Eaton Cummins Automated Transmission Technologies for further diagnostic instructions. For Help Line phone numbers, go to Contact Information. Go to Step V
If Fault Code 135 FMI 13 is Active, configure Driver Interface Device using ServiceRanger. Test complete.
If Fault Code 135 FMI 13 is Inactive, Driver Interface Device is configured. Test complete.
Note: Refer to OEM wiring diagrams and connector views to verify circuit locations and descriptions.
Key off.
Disconnect the OEM Driver Interface Device Connector.
Inspect the OEM Driver Interface Device Connector, verify the connector is free from contamination and corrosion; the terminals are not bent, spread or loose; and there is no damage to the connector body.
Key on.
Measure voltage between OEM Driver Interface Connector (+) TCM supplied 12v and (-) TCM supplied ground. Record reading in table.
Note: Refer to OEM wiring diagrams.

Compare reading(s) in table.
If readings are in range, Go to Step C
If readings are out of range, refer to OEM guidelines for repair or replacement of the Driver Interface Device power supply circuits between the OEM Driver Interface Device Connector and 20-Way TCM Vehicle Harness Connector. Go to Step V
| Pins | Range | Reading(s) |
|---|---|---|
| TCM supplied 12v to TCM supplied ground | 11–13 V |
Note: Refer to OEM wiring diagrams and connector views to verify circuit locations and descriptions.
Key on.
Measure voltage between OEM Driver Interface Device Connector (J1939 Data Link High) and 9-Way Diagnostic Connector Pin A (ground). Record reading in table.
Note: Refer to OEM wiring diagrams.

Measure voltage between OEM Driver Interface Device Connector (J1939 Data Link Low) and 9-Way Diagnostic Connector Pin A (ground). Record reading in table.

Compare reading(s) in table.
If readings are in range, Go to Step D
If readings are out of range, refer to OEM guidelines for repair or replacement of vehicle J1939 Data Link. Go to Step V
| Pins | Range | Reading(s) |
|---|---|---|
| J1939 Data Link High to A | 2.25–2.75 V | |
| J1939 Data Link Low to A | 2.25–2.75 V |
Key off.
Reconnect all connectors and verify that all components are properly installed.
Key on.
Connect ServiceRanger.
Retrieve and record the fault codes, FMIs, occurrences and timestamps.
If Fault Code 135 is Active, refer to OEM guidelines for repair or replacement of the Driver Interface Device. Go to Step V
If Fault Code 135 is Inactive, no problem was found. The intermittent nature of the fault makes it likely that the problem is with the:
Note: Refer to OEM wiring diagrams and connector views to verify circuit locations and descriptions.
Key off.
Disconnect the OEM Driver Interface Device Connector.
Inspect the OEM Driver Interface Device Connector, verify the connector is free from contamination and corrosion; the terminals are not bent, spread or loose; and there is no damage to the connector body.
Key on.
Measure voltage between OEM Driver Interface Device Connector (+) TCM supplied 12v and (-) TCM supplied ground. Record reading in table.
Note: Refer to OEM wiring diagrams.

Compare reading(s) in table.
If readings are in range, Go to Step F
If readings are out of range, refer to OEM guidelines for repair or replacement of the secondary shift device request circuit between the OEM Driver Interface Device Connector and the 20-Way TCM Vehicle Harness Connector. Go to Step V
| Pins | Range | Reading(s) |
|---|---|---|
| + to - | 11–13 V |
Note: Refer to OEM wiring diagrams and connector views to verify circuit locations and descriptions.
Key off.
Disconnect 20-Way TCM Vehicle Harness Connector.
Inspect the 20-Way TCM Vehicle Harness Connector, verify the connector is free from contamination and corrosion; the terminals are not bent, spread or loose; and there is no damage to the connector body.
Measure resistance between the OEM Driver Interface Device Connector Secondary Shift Device Request Circuit (SSDRC) and 20-Way TCM Vehicle Harness Connector Pin 9. Record reading in table.
Note: Refer to OEM wiring diagrams.

Measure resistance between the OEM Driver Interface Device Connector Secondary Shift Device Request Circuit (SSDRC) and Ground. Record reading in table.

Compare reading(s) in table.
If readings are in range, Go to Step G
If readings are out of range, refer to OEM guidelines for repair or replacement of the SSDRC between the OEM Driver Interface Device Connector and the 20-Way TCM Vehicle Harness Connector. Go to Step V
| Pins | Range | Reading(s) |
|---|---|---|
| SSDRC to 9 | 0.0 –0.3 Ohms | |
| SSDRC to Ground | Open Circuit (OL) |
Key off.
Reconnect all connectors and verify that all components are properly installed.
Key on.
Connect ServiceRanger.
Retrieve and record the fault codes, FMIs, occurrences and timestamps.
If Fault Code 135 is Active, refer to OEM guidelines for repair or replacement of the Driver Interface Device. Go to Step V
If Fault Code 135 is Inactive, no problem was found. The intermittent nature of the fault makes it likely that the problem is with the:
Key off.
Reconnect all connectors and verify that all components are properly installed.
Key on with engine off.
Connect ServiceRanger.
Go to “Fault Codes”.
Select “Clear All Faults”.
Operate vehicle and attempt to reset the fault code or duplicate the previous complaint.
Check for fault codes using ServiceRanger.
If no fault codes set and the vehicle operates properly, test complete.
If Fault Code 135 sets Active during test drive, Go to Step A
If a fault code other than 135 sets Active, troubleshoot per the Fault Code Isolation Procedure Index.