The Transmission Control Module (TCM) is configured to accept Primary Shift Device messages from the transmission driver interface device over the Primary Data Link (J1939A). This information is used to determine transmission operation.
A Secondary Shift Device request signal from the transmission driver interface device is also provided on a separate hardwired circuit. The Secondary Shift Device request signal allows a driver to engage the transmission into a Shift Mode in the event the Primary Shift Device message is not available.
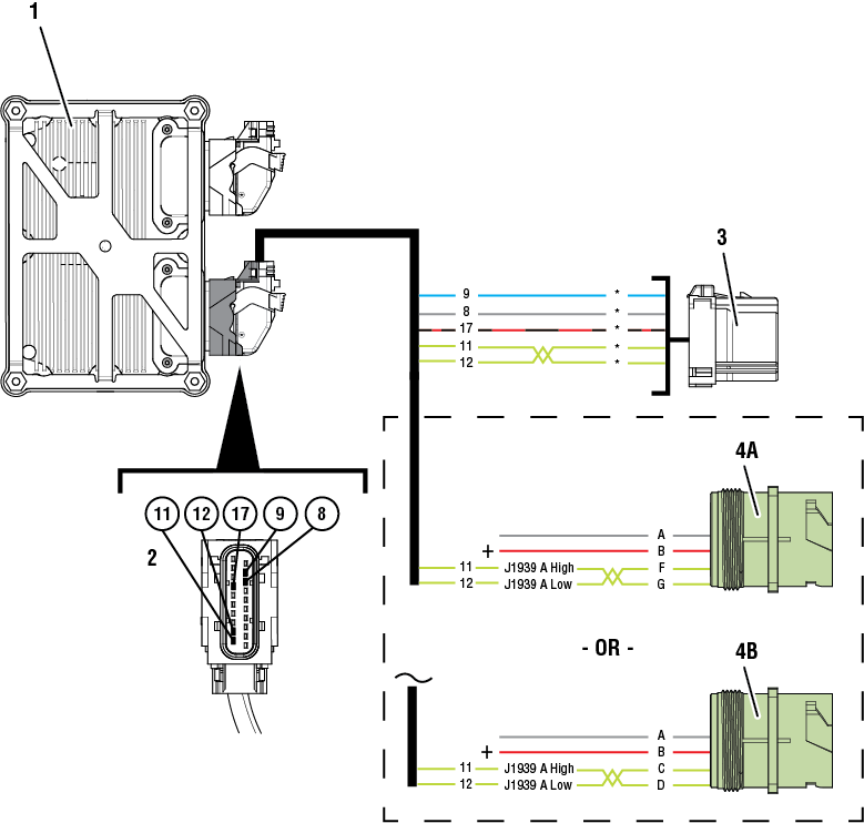
The Primary Data Link (J1939A), transmission driver interface device, and Secondary Shift Device hardwired circuit and wiring are installed by the OEM and connect to the TCM through the 20-Way TCM Vehicle Harness Connector.
The TCM monitors Secondary Shift Device request signal. If the signal is not received or invalid, the fault is set Active.
FMI 2 – Data Erratic: Secondary Shift Device request signal value out of range for 5 seconds.
FMI 4 – Voltage Below Normal or Shorted Low: Secondary Shift Device request circuit shorted to ground for 5 seconds.
FMI 5 – Current Below Normal or Open Circuit: Secondary Shift Device request circuit shorted to power or open for 5 seconds.
FMI 8 – Abnormal Frequency: Secondary Shift Device request signal frequency out of range for 5 seconds.
FMI 12 – Bad Intelligent Device: Inappropriate acceptance of non-Neutral Shift Mode without Service Brake depressed.
FMI 13 – Out of Calibration: Driver Interface Device incorrectly configured.
FMI 14 – Special Instructions: Delayed gear engagement after Shift Mode change.
FMI 2, 4, 5, 8:
FMI 12:
FMI 13:
FMI 14:
FMI 2: Secondary Shift Device request signal in range for 10 seconds.
FMI 4: Secondary Shift Device request signal not shorted to ground for 10 seconds.
FMI 5: Secondary Shift Device request signal not shorted to power or open for 10 seconds.
FMI 8: Secondary Shift Device request signal frequency in range for 10 seconds.
FMI 12, 14: Key cycle and fault condition no longer exist.
FMI 13: Driver Interface Type properly configured in TCM or condition no longer exists.
FMI 2, 4, 5, 8:
FMI 12, 14:
FMI 13:
Note: Refer to OEM for troubleshooting a failed system.
![]() |
1. 20-Way TCM Vehicle Harness Connector 2. Transmission Control Module (TCM) 3. OEM Transmission Driver Interface Device Connector (OEM Specific) 4. 9-Way Type 2 Diagnostic Connector (In Cab) |
![]() |
1. Transmission Control Module (TCM) 2. 20-Way TCM Vehicle Harness Connector 3. OEM Transmission Driver Interface Device Connector (OEM Specific) 4. 9-Way Type 2 Diagnostic Connector - OEM Specific CD (in cab) 5. 9-Way Type 2 Diagnostic Connector - OEM Specific FG (in cab) *Refer to OEM wiring diagrams and connector views to verify circuit locations and descriptions |
![]() |
Set vehicle parking brake and chock wheels.
Record transmission fault codes, FMIs, occurrences, and timestamps from Service Activity Report created during the Diagnostic Procedure.
If Fault Code 145 is Inactive and there are other Active vehicle or transmission fault codes, troubleshoot all Active fault codes. Go to Step V
If Fault Code 145 FMI 4 and Fault Code 210 FMI 4 are both set Active or Inactive, troubleshoot per Fault Code 210: Transmission Oil Pressure (Fluid Pressure Sensor).
If Fault Code 145 FMI 5 is Active and OEM is Freightliner or Western Star, connect ServiceRanger, Go To Configuration, select Vehicle and configure Driver Interface Device to J1939 CAN Device w/o PWM (includes Freightliner and Western Star). Process complete.
If Fault Code 145 FMI 2, 4, 5, 8 is Active or Inactive, Go to Step B
If Fault Code 145 FMI 12, 14 is Active or Inactive, Contact Eaton Cummins Automated Transmission Technologies for further diagnostic instructions. For Help Line phone numbers, go to Contact Information. Go to Step V
If Fault Code 145 FMI 13 is Active, configure Driver Interface Type in TCM using ServiceRanger. Go to Step V
If Fault Code 145 FMI 13 is Inactive, Driver Interface Type is configured in TCM. Go to Step V
Note: Refer to OEM wiring diagrams and connector views to verify circuit locations and descriptions.
Key off.
Disconnect OEM transmission driver interface device connector.
Inspect OEM transmission driver interface device connector, verify connector is free from contamination and corrosion; terminals are not bent, spread or loose; and there is no damage to connector body.
Key on with engine off.
Measure voltage between OEM transmission driver interface device connector TCM supplied 12v (+) and TCM supplied ground (-). Record reading in table.
Note: Refer to OEM transmission driver interface device wiring diagrams.

Compare reading(s) in table.
If readings are in range, Go to Step C
If readings are out of range, refer to OEM guidelines for repair or replacement of transmission driver interface device power supply circuits between OEM transmission driver interface device connector and 20-Way TCM Vehicle Connector. Go to Step V
| Pins | Range | Reading(s) |
|---|---|---|
| TCM Supplied 12V to TCM Supplied Ground | 11–13 V |
Note: Refer to OEM wiring diagrams and connector views to verify circuit locations and descriptions.
Key off.
Disconnect 20-Way TCM Vehicle Harness Connector from TCM.
Inspect 20-Way TCM Vehicle Harness Connector, verify connector is free from contamination and corrosion; terminals are not bent, spread or loose; and there is no damage to connector body.
Measure resistance between the OEM Driver Interface Device Connector Secondary Shift Device Request Circuit (SSDRC) and 20-Way TCM Vehicle Harness Connector Pin 9. Record reading in table.
Note: Refer to OEM wiring diagrams.

Measure resistance between the OEM Driver Interface Device Connector Secondary Shift Device Request Circuit (SSDRC) and Ground. Record reading in table.

Compare reading(s) in table.
If readings are in range, Go to Step D
If readings are out of range, refer to OEM guidelines for repair or replacement of the SSDRC between the OEM Driver Interface Device Connector and the 20-Way TCM Vehicle Harness Connector. Go to Step V
| Pins | Range | Reading(s) |
|---|---|---|
| SSDRC to 9 | 0.0 –0.3 Ohms | |
| SSDRC to Ground | Open Circuit (OL) |
Key off.
Reconnect all connectors and verify all components are properly installed.
Key on with engine off.
Connect ServiceRanger.
Go To “Fault Codes”.
Retrieve and record fault codes, FMIs, occurrences and timestamps.
If Fault Code 145 is Active, refer to OEM guidelines for repair or replacement of the transmission driver interface device. Go to Step V
If Fault Code 145 is Inactive, no problem was found. The intermittent nature of the fault makes it likely that the problem is in the following. Contact OEM for further diagnostic instructions. Go to Step V
Key off.
Reconnect all connectors and verify all components are properly installed.
Key on with engine off.
Connect ServiceRanger.
Go To “Fault Codes”.
Select “Clear All Faults”.
Operate vehicle and attempt to reset the fault code or duplicate the previous complaint.
Check for fault codes using ServiceRanger.
If no fault codes set and vehicle operates properly, test complete.
If Fault Code 145 sets Active, Go to Step A
If a fault code other than 145 sets Active, troubleshoot per the Fault Code Isolation Procedure Index.